More Information about this Development Project
Estates of Hidden Creek is a 90 acre custom home development project with 65 one acre plus lots located near Waxahachie, TX.
-
- Located in Ellis County just North of Waxahachie on Butcher Rd.
- Minutes from I-35 and multiple new retail developments
Below are some of the early details. We will add more as development continues.
-
- 90 acre exclusive custom home development
- 65 one acre plus lots
- Homes are a minimum of 2600 square feet
Additional Details
- We are currently putting in infrastructure: Roads, communication, power, water lines and more.
- Phase 1 – completed
- Phase 2 – proposed completion of December 2025
Fill out the form below and
we will get back to you ASAP
Located in Ellis County just North of Waxahachie on Butcher Rd. ⇒
Minutes from I-35 and multiple new retail developments
Maxwell Development Group, LLC is currently in the early stages of development.
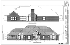
See our early designs of our Front Elevation and Floorplan.

FRONT ELEVATION
Floor Plan
ESTATES OF HIDDEN CREEK
PLAT IMAGES







